How to Position Videowall
First of all, you need two Reality Engines for the Portal Window. One is for, feeding the Videowall the other one is needed for the regular AR pipeline.
For the Engine 1:
Please make sure that your lens and tracking device are well calibrated. You have to know the actual zero of your set which means your "Zero point" in your setup. Because Portal Window is placed and all the calculations are made in the real space according to the relevant position of the Portal Window to this point.
Creating a Dummy Cube on Reality Setup
On Reality Setup, right click on node graph and go to CREATE UE PRIMITIVES DUMMY CUBE to create a DUMMY CUBE node. And connect it to CAMERA by adding a SHOW ONLY pin to the input of the CAMERA node. Add a LENS DISTORT node to distort and connect it to the Camera Render as shown below:

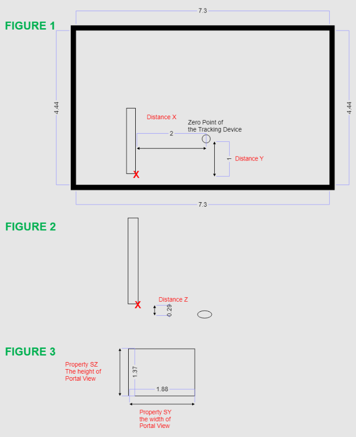
Calculating the Dummy Cube Location(Left Bottom) and Size
- In Figure 1, you see the top view of the real set. You have to measure where the Portal Window (the rectangle plane) is set according to the zero point of the set. Here the X value and Y value of the TRANSFORM of the DUMMY CUBE is 200 and -100 accordingly. The position of the "X" in figure 1 is representing left bottom of the video wall.
- In Figure 2, you see the front view of the real set, And you see that the Portal Window is 0.29 m above the ground zero point. That means the Z value of the TRANSFORM of Dummy Cube is 29 (we write in centimeters)
- In Figure 3, you see your Portal Window screen, which might be a flat screen in your set., Here the SY value of the TRANSFORM is the width of your Portal Window and SZ value is the height of the Portal Window in meters. Here in this example, SY is 1.88 and SZ is 1.37. And by default set SX value to 0.01 which corresponds to a very thin plane.

After you enter these values your DUMMY CUBE should look like this:

Now when you move your camera, your Dummy Cube should not be moving and staying on its position. Now you can move to next step where you will enter these values as your Portal Window properties.